DOUG MERESKA / AVISON YOUNG

3036 36 Street N, Commercial for sale in Sherring Industrial Park Lethbridge , Alberta , T1H 7B5

 MLS® # A2265919

0 bathrooms

Sign up to View

Days on Market

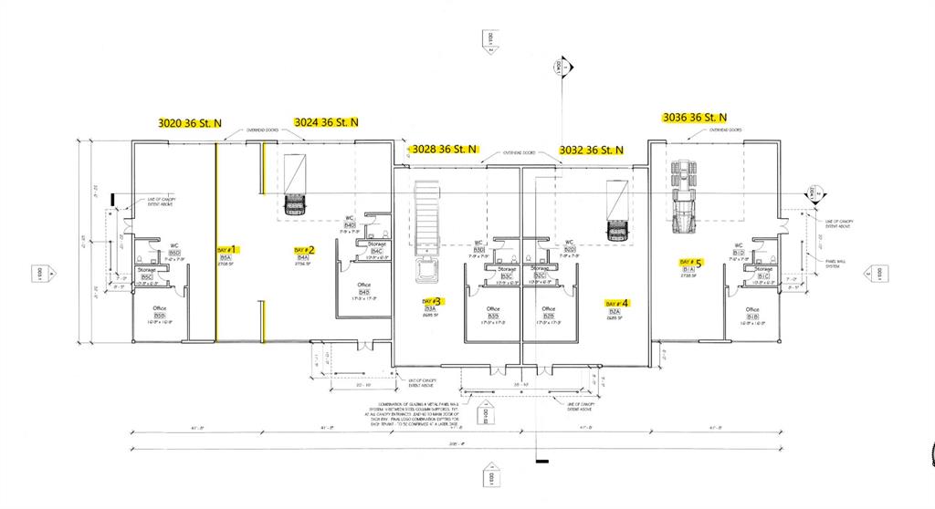
The subject property is part of a desirable development and offers an energy-efficient design, a paved yard and driveway, with great visibility. The unit features a large open shop space in the rear with 20’ ceiling height, one 14’x16’ OHD, and a make-up air unit. Located at the intersection of 36 Street and 32 Avenue North, the property is surrounded by successful businesses and anchored by Wal-Mart and the Lethbridge Sports Park. With easy corner access, the property is a great fit for warehousing, genera...

Read More

Essential Information

  • MLS® #
    A2265919
  • Year Built
    2014
  • Property Type
    Industrial
  • MLS® #
    A2265919
  • Year Built
    2014
  • Property Type
    Industrial
  • MLS® #
    A2265919
  • Year Built
    2014
  • Property Type
    Industrial

Community Information

  • Postal Code
    T1H 7B5
  • Postal Code
    T1H 7B5
  • Postal Code
    T1H 7B5

Additional Details

  • Zoning
    I-B
  • Zoning
    I-B
  • Zoning
    I-B

$10.5/sqft

3036 36 Street N

Schedule Tour
Contact Agent

$1/month
Est. Monthly Payment
$
$
%
Learn More