Sean Na / MaxWell Canyon Creek

1511 23 Avenue NW, Townhouse for sale in Capitol Hill Calgary , Alberta , T2M1V2

 MLS® # A2267276

0 bathrooms

5,190 sqft

Sign up to View

Days on Market

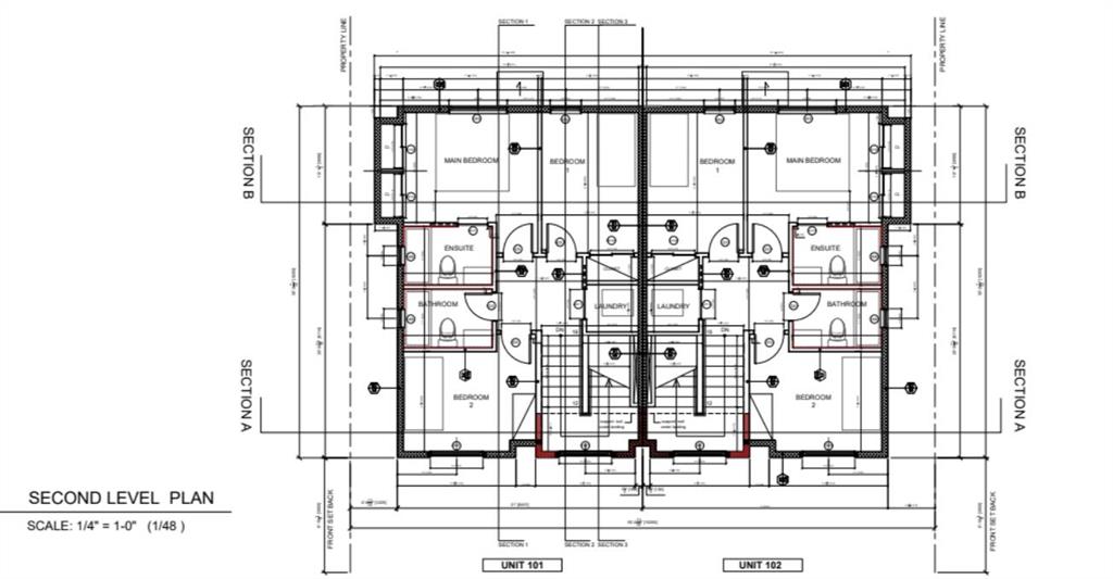
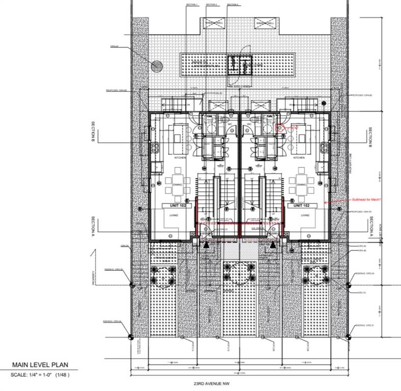
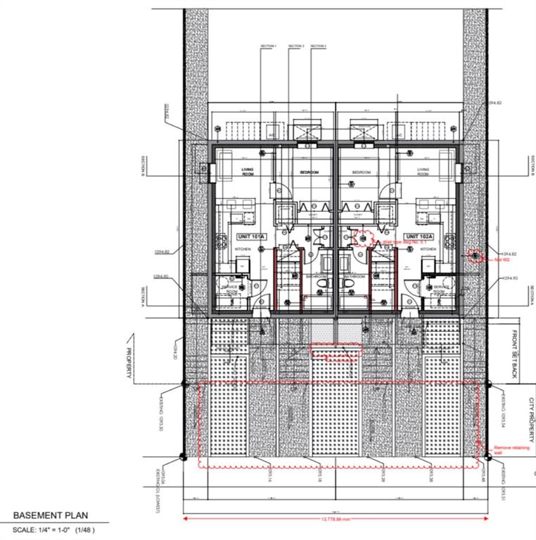
An exceptional opportunity to own a brand-new 4plex with 4 legal basement suites—a total of 8 self-contained rental units complete with 4 single garages, offering outstanding income potential and long-term value. Each basement suite has its own private entrance, ensuring privacy and flexibility for tenants. Showcasing modern architecture and premium finishes, this property stands out as one of Calgary’s most impressive multi-family builds. Perfectly located in Capitol Hill, just off 14th Street NW, it provi...

Read More

Essential Information

  • MLS® #
    A2267276
  • Year Built
    2026
  • Property Type
    4 plex
  • MLS® #
    A2267276
  • Year Built
    2026
  • Property Type
    4 plex
  • MLS® #
    A2267276
  • Year Built
    2026
  • Property Type
    4 plex

Community Information

  • Postal Code
    T2M1V2
  • Postal Code
    T2M1V2
  • Postal Code
    T2M1V2

Additional Details

  • Zoning
    R-CG
  • Zoning
    R-CG
  • Zoning
    R-CG

$2,979,000

1511 23 Avenue NW

Schedule Tour
Contact Agent

$13566/month
Est. Monthly Payment
$
$
%
Learn More